Tiny Store Double 2.

Die autarke Vollausstattung.

36 Quadratmeter geballte Bäckerei-Kompetenz – aus zwei Modulen vereint.

Wenn ein einfacher Verkaufsstand nicht mehr ausreicht, kommt der Double 2 ins Spiel. Durch die intelligente Kopplung von zwei Containern entsteht auf 6 x 6 Metern eine beeindruckende, hochmoderne Bäckereifiliale. Ob auf stark frequentierten Supermarkt-Parkplätzen oder zur Erschließung komplett neuer Standorte: Der Double 2 bietet nicht nur eine großzügige Verkaufsfläche, sondern auch den nötigen Raum für frische Zubereitung, Lagerung und den direkten Verzehr vor Ort. Eine mobile High-End-Lösung, die keine Wünsche offenlässt.

Zwei Module. Unendliche Möglichkeiten.

Der Double 2 hebt mobiles Verkaufen auf ein neues Level. Hier müssen Sie keine Kompromisse bei Ihrem Sortiment oder den Arbeitsabläufen machen – Ihre Mitarbeiter haben alles, was sie für das Tagesgeschäft brauchen.

Die Vorteile auf einen Blick:

Großzügige 36 m²
Eine 6 x 6 Meter große, mobile Bäckereifiliale, bestehend aus zwei nahtlos verbundenen Containern.
Echte Backstuben-Power
Integrierter Vorbereitungsbereich inklusive Ofenstellplatz, Saladette (für frische Snacks) und reichlich Stauraum für autarkes Arbeiten.
Kundenmagnet mit Aufenthaltsqualität
Ein integriertes Design-Stehboard lädt Ihre Kunden zum direkten Verzehr im Haus ein.
Maximale Sichtbarkeit
Eine beeindruckende, große Schaufensteranlage sorgt für optimalen Einblick und rückt Ihre Einrichtung ins beste Licht.
High-End-Präsentation
Voll ausgestattete Thekenanlage inklusive integriertem Getränkekühlschrank für Impulskäufe.
Kompromissloses Klima
Voll klimatisiert – Heizung und Klimaanlage serienmäßig für angenehme Temperaturen an 365 Tagen im Jahr.

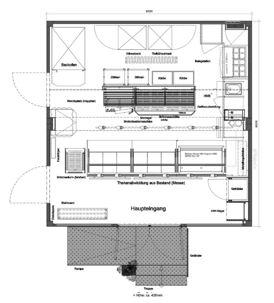
Der Grundriss: Perfekte Trennung von Verkauf und Vorbereitung.

Auf dem Grundriss wird die Stärke der zwei Module sofort sichtbar: Vorne befindet sich die großzügige Verkaufsbühne mit weiter Fensterfront, einladender Theke und dem Design-Stehboard für Ihre Gäste. Hinten liegt das unsichtbare Kraftzentrum – Ihr durchdachter Lager- und Vorbereitungsbereich. Durch die clevere Positionierung von Ofenstellplatz und Snack-Station (Saladette) ermöglichen wir Ihren Mitarbeitern ergonomische, kurze Wege. So garantieren Sie maximale Frische, ohne dass Unruhe im Kundenbereich entsteht.

Bereit für den nächsten großen Schritt?

Der Tiny Store Double 2 ist die ideale Lösung, um Top-Standorte mit maximaler Durchschlagskraft und vollem Sortiment zu bespielen. Sprechen Sie mit uns über Ihr Projekt. Auch für dieses Raumwunder bieten wir Ihnen flexible Miet- und Kaufoptionen an.