Tiny Store Single 1.

Das kompakte Raumwunder.

Auf 18 Quadratmetern zu neuen Umsätzen – die smarte Lösung für Ihren nächsten Standort.

Sie haben einen potenziellen Top-Standort im Auge, scheuen aber das hohe Investitionsrisiko eines Festbaus? Der Tiny Store Single 1 ist unsere Antwort auf diese Herausforderung. Auf kompakten 3 x 6 Metern erhalten Sie eine voll ausgestattete, hochmoderne Bäckereifiliale auf Containerbasis. Flexible Einsatzmöglichkeiten, starke Außenwirkung und High-End-Ausstattung machen dieses Modell zur ersten Wahl für smarte Standorttests und temporäre Einsätze.

Kompakt in den Maßen, kompromisslos in der Ausstattung.

Wir haben jeden Zentimeter durchdacht, damit Sie und Ihre Kunden auf nichts verzichten müssen.

Die Vorteile auf einen Blick:

Vollwertige Bäckereifiliale
Eine komplett durchdachte und sofort einsatzbereite Lösung auf Containerbasis.
Optimierte Raumnutzung
Speziell für kleine Flächen entwickelte Verkaufsmöbel holen das Maximum aus der 3 x 6 m großen Verkaufsfläche heraus.
Maximale Transparenz
Große Fensterflächen laden Kunden schon von weitem ein und sorgen für einen hellen, freundlichen Verkaufsraum.
High-End-Ausstattung
Integrierter Getränkekühlschrank und hochwertige Materialien für eine erstklassige Warenpräsentation.
Ganzjährig komfortabel
Voll klimatisiert – inklusive moderner Heizung und Klimaanlage für Sommer und Winter.
Markantes Design
Eine starke, ästhetische Außenwirkung, die Ihre Marke perfekt in Szene setzt.

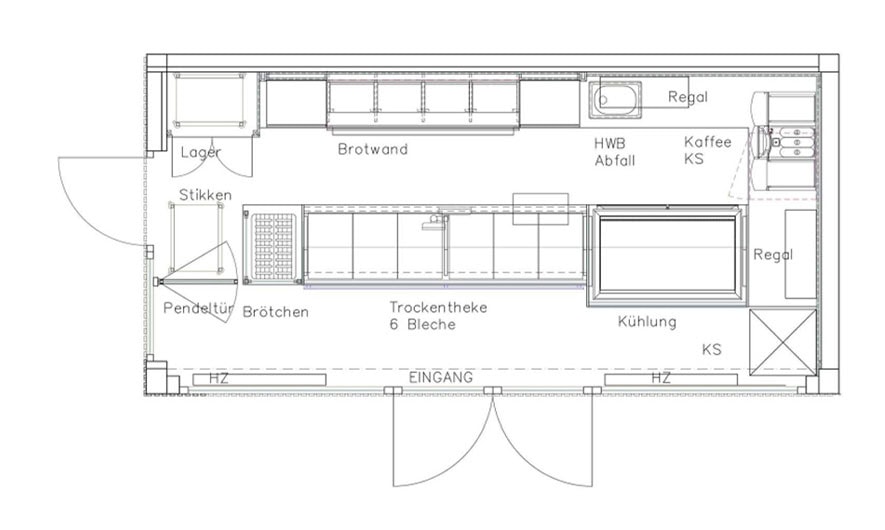
Der Grundriss: Effizienz auf 18 m²

Ein Blick auf den Grundriss zeigt, wie Funktionalität auf kleinstem Raum funktioniert. Kurze Wege für Ihr Verkaufspersonal, eine klare Trennung von Arbeits- und Kundenbereich sowie die optimale Platzierung der Theke sorgen für reibungslose Abläufe – selbst zu Stoßzeiten. Der Single 1 ist so konzipiert, dass er sich nahtlos in den Alltag einer modernen Bäckerei einfügt.

Bereit für Ihren neuen Standort?

Ob als Überbrückung während einer Bauphase oder als fester Baustein Ihrer Expansionsstrategie – der Tiny Store Single 1 ist schnell aufstellbar und flexibel einsetzbar. Sprechen Sie mit uns über Ihre Pläne. Wir bieten Ihnen attraktive Miet- und Kaufoptionen.